Проект: Good 96
Дом
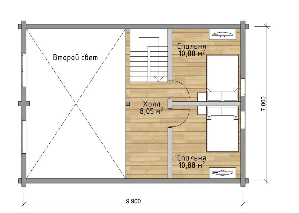
3
спальни
1
с/у Этажей: 2
Компактный дом из клееного бруса со вторым светом сочетает функциональность, красоту и экономичность, идеально подходит для тех, кто мечтает о собственном доме вдали от городской суеты, но хочет сохранить преимущества современной архитектуры и комфорта проживания.
6 105 000 руб.
Проект доступен в других сечениях бруса. Цена по запросу.






