Проект: Good 136(2)
Дом
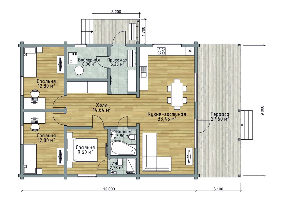
Планировка
3
комнаты
1
с/у
1
терраса Этажей: 1
Данный проект – это версия всем полюбившегося Good 136. Более привлекателен по бюджету за счёт отстутствия потолочных балок, утепление происходит по кровле. Потолки во всём доме разноуровневые от 2,7 до 4 метров, что придает большой объем помещениям.
6 793 000 руб.
Проект доступен в других сечениях бруса. Цена по запросу.В ипотеку
от 25 100 руб. в месяц
Работаем с эскроу-счетами. Подробнее




