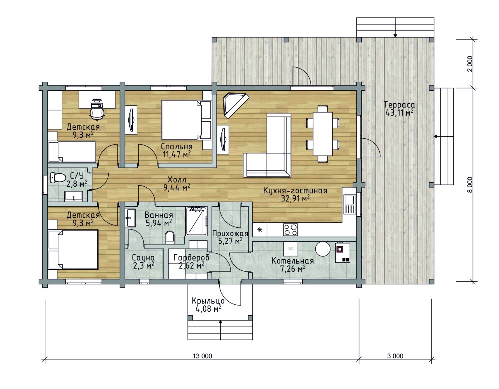
Проект: Good 145
Дом
Планировка
3
комнаты
2
с/у
1
терраса Этажей: 1
Расположившись среди живописной природы, этот одноэтажный дом манит своей простотой и гармонией с окружающей средой. Планировка в данном проекте продумана до мелочей. В данном проекте особое внимание уделено зоне отдыха и релаксации, в нем есть сауна и терраса с выходом из кухни гостинной.
7 983 000 руб.
Проект доступен в других сечениях бруса. Цена по запросу.В ипотеку
от 29 500 руб. в месяц
Работаем с эскроу-счетами. Подробнее






